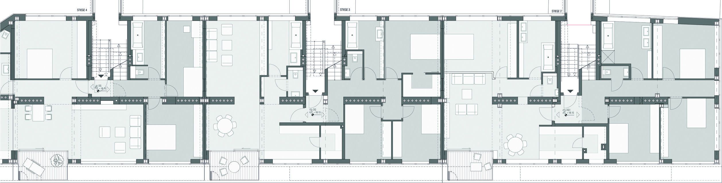
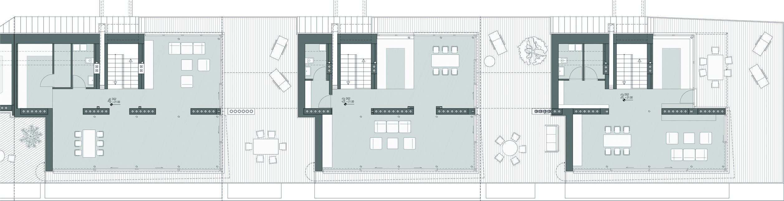
Spittelauer Lände
1090 Wien, Spittelauer Lände 15-21 und Alexander-Nehr-Gasse 1+3
(Aufteilung in zwei wirtschaftliche Einheiten)
Auftraggeber: BWS Gemeinnützige allgemeine Bau-, Wohn- und Siedlungsgenossenschaft reg. Ges.m.b.H.
Bauzeit: 2017 - 2019

Wesentliche Umsetzungen
- 30 Dachgeschoss-Eigentumswohnungen
- Großzügige Freiflächen
- Teilweise Maisonettewohnungen
- Gehobene Ausstattung
- Hochwertige Materialien






























