Presshaus
Presshaus im Weinviertel, 2053 Ragelsdorf
Auftraggeber: Privat
Jahr: 2012
Leistung: Revitalisierung, Planung, Örtliche Bauaufsicht

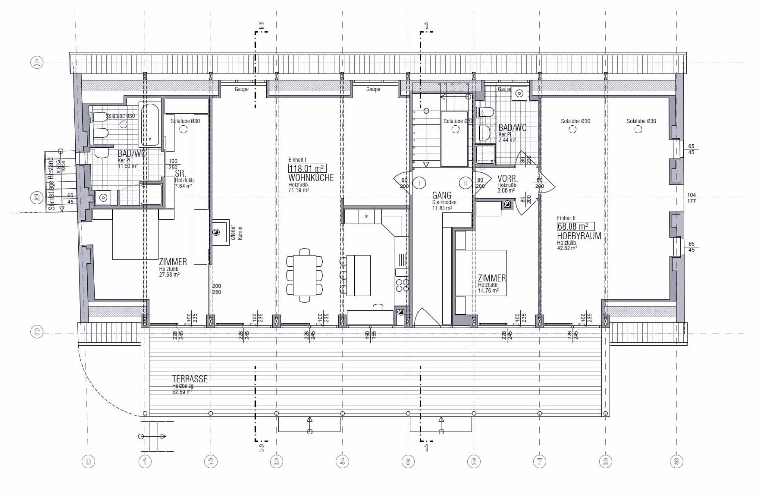
Revitalisierung statt Abriss – Ein neues Leben für ein Presshaus im Weinviertel
Die Bauherren standen vor der Herausforderung, zwischen dem Abriss des einsturzgefährdeten Presshauses und seiner Revitalisierung zu wählen. Letztendlich entschieden sie sich für eine möglichst umfassende Erhaltung der Bausubstanz, verbunden mit einer westseitigen Öffnung des Dachs in Richtung Garten.
























