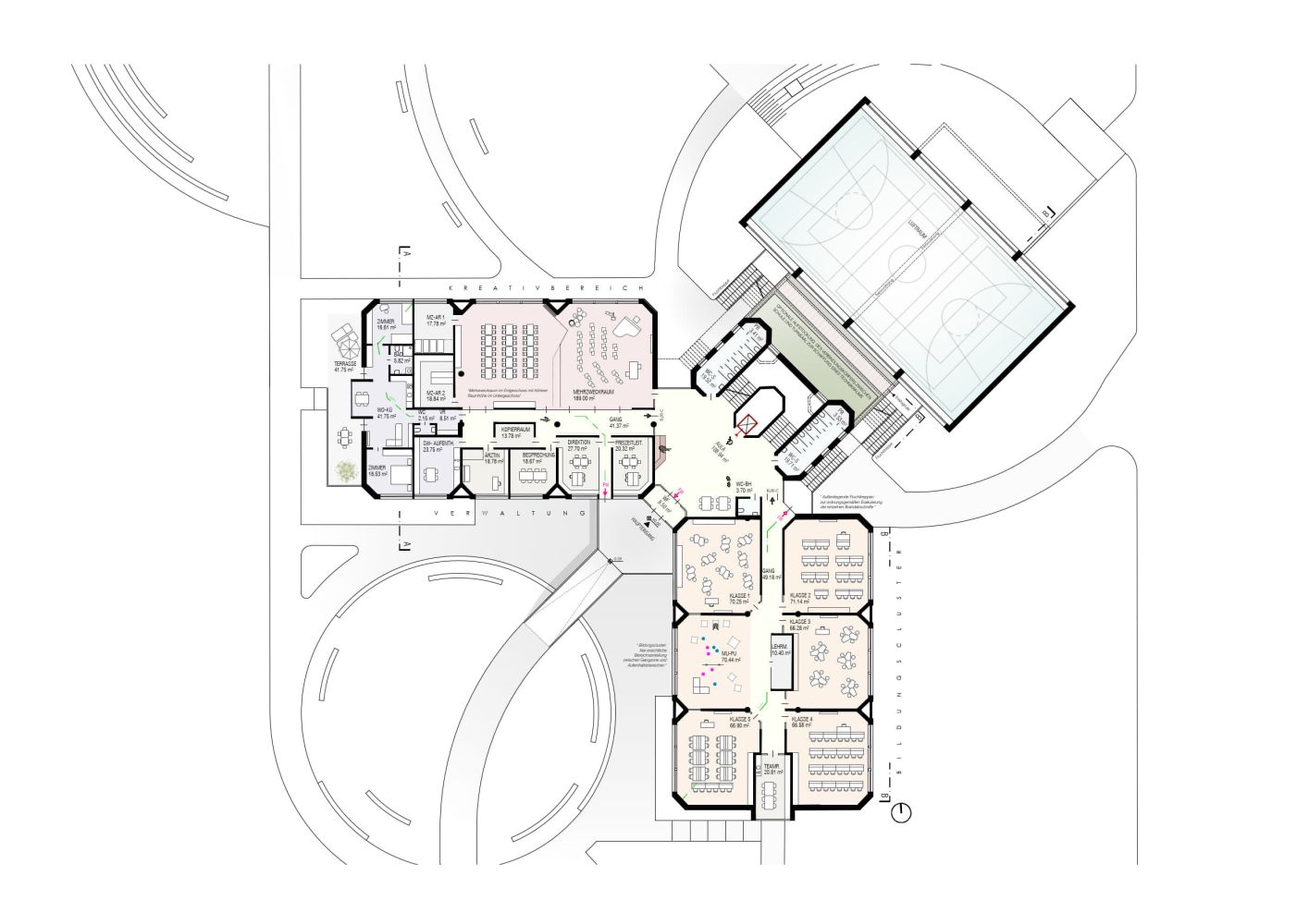
Marco-Polo-Platz
1210 Wien, Marco-Polo-Platz 9
Auftraggeber: Stadt Wien MA56 vertreten durch WIP Wiener Infrastruktur Projekt GmbH
Leistung: Wettbewerb für Generalplanerleistungen für die Sanierung und Erweiterung einer Volksschule
Jahr: 2023

Baukosten: € 15.301.354,46
Nutzfläche: 4.642,34 m²
Team: Arch DI Wolfgang Jancar
Statik: AXIS Ingenieurleistungen ZT GmbH
Bauphysik: AXIS Ingenieurleistungen ZT GmbH
Gebäudetechnik: Gebäudetechnik Kainer GmbH





























